药品稳定性试验室招标公告
药品稳定性试验室招标公告
一、采购项目信息
1、项目名称:药品稳定性试验室
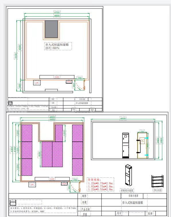
2、项目主要内容:1套步入式药品稳定性试验箱和1套货架
3、采购规格和材质要求:满足药品稳定性试验室技术参数要求
4、实施地点:浏阳经济技术开发区康平路10号
二、拟采购设备的说明
1、详细试验室参数见附件的文件,若不能达到技术参数要求请勿投标。
2、药品稳定性试验室质保期1年,质保期过后3年内只收配件费用。(从验收合格之日起)。
3、在质保期内设备方式故障,要求供应商在接报后,30分钟内电话回复,36小时内安排技术人员到达现场,排除故障。
4、付款方式:合同签订后预付30%,货到安装调试验收合格后一个月内凭全额13%增值税专用发票支付60%,预留10%作为质保金,货到买方工厂验收合格之日起12个月满后一次付清。
三、投标人资格要求
1、具有独立法人资格,具备符合招标项目需要的资质等级、注册资金。
2、具有全面履行合同的能力。
3、近三年独立完成招标项目类似的业绩,且没有发生由于管理原因造成的质量、安全事故以及被行政处罚。
4、无重大作为被告、被申请人、被执行人的诉讼案件,可能影响招标项目合同的履行。
5、符合国家法律法规及招标文件提出的其他要求。
四、投标文件组成
1、报价部分(含设备详细配置清单及所有配件单价、运输、税金、售后服务、付款方式)。
2、携带下列资料加盖公章的复印件(留存)一套;公司资质、法人授权委托书原件,品牌授权委托书、法定代表人身份证和被授权人身份证复印件;售后服务承诺,备件资料(含设备所需易耗、易损备件清单及供应商联系方式)。
五、投标文件的装订和递交
1、各投标单位根据公告要求,自行制作标书进行投标;
2、投标方应将投标文件的报价部分、资料装订成册并密封;
3、盖章密封后快递或送至我公司;
4、超过截止时间的,资料不完整的投标文件,为无效投标文件;
5、开标当天,竞标方派人员到现场参与开标及答凝;
6、邮寄地址:湖南省长沙市浏阳经开区康平路10号
联系人:李先生:15873338803
六、评标定标办法:
1、本项目评标办法采用“竞争性磋商”。
2、确定中标人方式:根据投标单位提供的标书响应度及投标单位的综合资质与案例,由评标小组成员综合评选一家投标单位中标。
3、本项目资格审查方式为资格现场审核。
七、评标委员会的组成
评标委员会人数为5人以上,具体由生产管理中心、质量管理部、财务部等负责人及公司领导组成。
八、投标截止日期:2024年6月14日上午9:30整(北京时间)
九、开标日期:2024年6月14日上午9:30(北京时间)
开标地点:湖南省长沙市浏阳经开区康平路10号
九、采购单位信息
采购单位:湖南春光九汇现代中药有限公司
地址:浏阳经开区康平路10号
电话:0731-83280788






